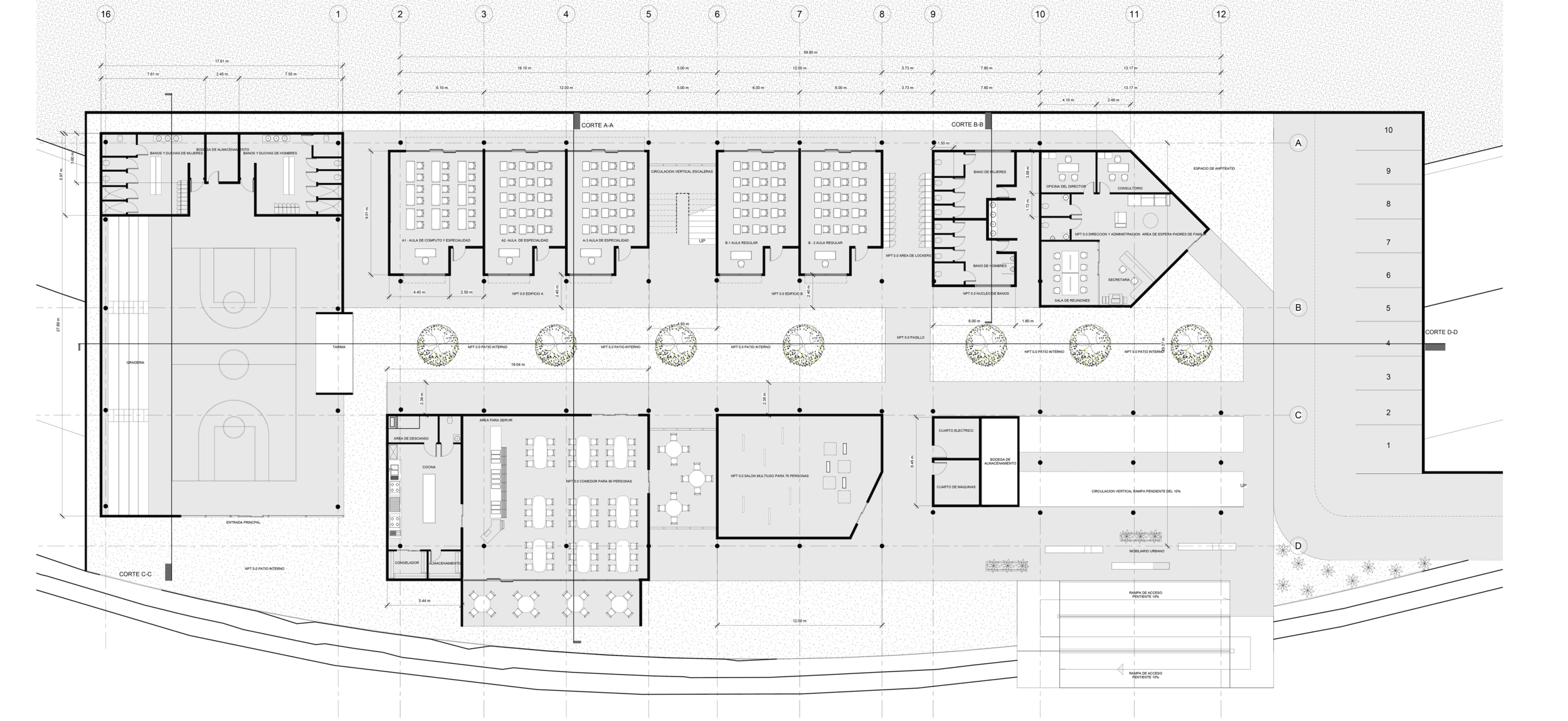
CTP, Puntarenas
The project involves the creation of the new Caldera Technical High School, situated in Puntarenas. Given the area's extreme weather conditions, I have implemented various sustainable design features, including passive ventilation, passive daylighting systems, and other critical strategies aimed at minimizing the building's impact on the environment.
Client:
Amazon
Role:
Architect, 3D Modeling
Year:
2019
CTP, Puntarenas
The project involves the creation of the new Caldera Technical High School, situated in Puntarenas. Given the area's extreme weather conditions, I have implemented various sustainable design features, including passive ventilation, passive daylighting systems, and other critical strategies aimed at minimizing the building's impact on the environment.
Client:
Amazon
Role:
Architect, 3D Modeling
Year:
2019
CTP, Puntarenas
The project involves the creation of the new Caldera Technical High School, situated in Puntarenas. Given the area's extreme weather conditions, I have implemented various sustainable design features, including passive ventilation, passive daylighting systems, and other critical strategies aimed at minimizing the building's impact on the environment.
Client:
Amazon
Role:
Architect, 3D Modeling
Year:
2019


Whether you’re designing a hospital, school, civic center or any other type of building, effective passive strategies will make your space look and feel more welcoming. However, to reap all of these benefits, your daylighting strategies must work in your specific location and address your unique needs.
CTP, Puntarenas
The project involves the creation of the new Caldera Technical High School, situated in Puntarenas. Given the area's extreme weather conditions, I have implemented various sustainable design features, including passive ventilation, passive daylighting systems, and other critical strategies aimed at minimizing the building's impact on the environment.
Role:
Architect, 3D Modeling
Year:
2019



Whether you’re designing a hospital, school, civic center or any other type of building, effective passive strategies will make your space look and feel more welcoming. However, to reap all of these benefits, your daylighting strategies must work in your specific location and address your unique needs.
Whether you’re designing a hospital, school, civic center or any other type of building, effective passive strategies will make your space look and feel more welcoming. However, to reap all of these benefits, your daylighting strategies must work in your specific location and address your unique needs.


Social Area


Social Area


Social Area


Social Area


Social Area


Waiting Room


Staircase


Cafeteria






















Classrooms




Social Area


Classroom
Classrooms




